<< Skupina SHP
česky
english
по-русски

<< Zpět na Prefabrikované

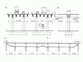
Most 9216 přes trať ČD, rychlostní komunikace R35

Realizace 2002

Most celkové délky 215,5 m s rozpětími 24,0 + 5 x 31,0 + 24,0 m je tvořen prefabrikovanými, dodatečně předpjatými nosníky „T“ průřezu se spřaženou monolitickou deskou.

SHP: projekt pro územní rozhodnutí
          projekt pro stavební povolení